Photo Pipa


  

Pipa

L’hébergement en bord de mer Pipa se trouve à Sarzeau, à seulement 23 km de ce lieu d’intérêt : Port de Plaisance de Vannes. Il propose un jardin, une terrasse et une connexion Wi-Fi gratuite. Cette maison de vacances 3 étoiles est à 24 km de : Gare de Vannes.

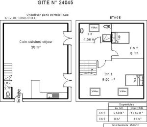
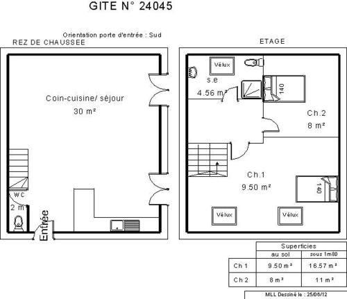
Cette maison de vacances compte 2 chambres, une cuisine avec un réfrigérateur et un lave-vaisselle, une télévision, un coin salon, ainsi que 1 salle de bains comportant une douche.

Vous séjournerez à respectivement 24 km et 25 km de ces lieux d’intérêt : Musée des Beaux Arts (La Cohue) et Espace événementiel Le Chorus. L'aéroport le plus proche (Aéroport de Montoir) est à 82 km.


À quelle période souhaitez-vous séjourner dans cet établissement ?
Du : 
Au : 

Chambres
Maison 2 Chambres 
Guests will find a refrigerator, a dishwasher and a microwave in the kitchen. The holiday home also provides guests with a barbecue. This holiday home features a washing machine, a private entrance, a TV and a terrace. The unit offers 3 beds.



Réservez en seulement 2 mins avec notre partenaire Booking.com
Reservez maintenant, au meilleur prix !



Informations générales et conditions
Adresse
20 Rue Ste Anne-Banastère 56370 Sarzeau
Arrivée 16h00 - 19h00
Départ Jusqu'à 10h00
Nombre de chambres 1
Informations importantes Les enterrements de vie de célibataire et autres fêtes de ce type sont interdits dans cet établissement. Un dépôt de garantie d\'un montant de EUR 300 est demandé à l\'arrivée. Il devra être payé en espèces. Le remboursement devrait être effectué le jour de votre départ. Le dépôt de garantie vous sera entièrement remboursé en espèces, si aucun dommage n\'a été constaté par l\'établissement.


Equipements
- Chambres non-fumeurs - Chauffage
- Connexion internet Wi-Fi - Connexion internet Wi-Fi gratuite
- Connexion internet disponible - En bord de plage
- Installations pour barbecue - Jardin
- Mobilier extérieur - Plage
- Pêche - Terrasse
- Wi-Fi disponible partout - Établissement entièrement non-fumeurs


Autres photos de l'hébergement


Carte Sarzeau
Liste des hôtels et des autres hébergements des communes proches

Voici la liste des communes proches de Maisons de vacances Pipa. En suivant ces liens, vous trouverez les informations, la carte, les prévisions météo et la liste des hôtels les plus proches de chaque commune.




Pipa : réservez avec Booking.com !

En choississant de réserver en ligne avec notre partenaire booking.com nous vous garantissons :
  • Une réservation sécurisée. Pour chaque réservation effectuée sur notre site, vos coordonnées sont protégées par une connexion sécurisée.
  • La protection de vos données personnelles. Vos données personnelles seront utilisées uniquement pour garantir votre réservation.
  • Pas de frais de réservation. Vous réglez votre séjour uniquement auprès de l'hôtel. Booking.com ne débitera pas votre carte de crédit.
  • La garantie du meilleur tarif. Vous avez trouvé la même chambre sur Internet à un tarif inférieur ? Booking.com alignera le prix.


J'aime
Pipa !



Rechercher un autre hôtel

Réservez maintenant, au meilleur prix !

Destination :


Date d'arrivée
      calendar
Date de départ
      calendar












Voir les hotels d'autres villes et villages de france


Rechercher les hotels d'une autre commune, code postal, département, région, ...




Vous aimez "Pipa" ? Faites un lien vers la page: "Pipa", à l'aide du code ci-dessous :







Rejoignez l'actualité Carte de France sur Facebook :