Photo Lovely Home In Plérin With Wifi

 9.5 / 10  
Note sur 2 commentaires

  

Lovely Home In Plérin With Wifi

L’hébergement Lovely Home In Plérin With Wifi se situe à Plérin, à respectivement 2,1 km, 5,8 km et 7,2 km de ces lieux d’intérêt : Plage des Rosaires, Cathédrale Saint-Étienne de Saint-Brieuc et Musée d’art et d’histoire de Saint-Brieuc. Situé en bord de mer, cet hébergement comprend un jardin.

Cette maison de vacances comporte 1 chambre, une télévision, un coin repas, un salon, ainsi qu’une cuisine avec un réfrigérateur. Cet hébergement 3 étoiles possède un parking privé gratuit ainsi qu’une connexion Wi-Fi gratuite dans l’ensemble de ses locaux.

Vous séjournerez à respectivement 7,6 km et 20 km de ces lieux d’intérêt : Gare de Saint-Brieuc et Golf des Ajoncs d'Or.


À quelle période souhaitez-vous séjourner dans cet établissement ?
Du : 
Au : 

Chambres
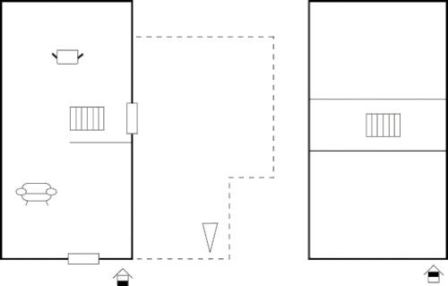
Maison de Vacances 1 Chambre 
Boasting a private entrance, this holiday home also includes 1 living room, 1 separate bedroom and 1 bathroom with a shower. Guests will find a stovetop, a refrigerator, kitchenware and an oven in the fully equipped kitchen. The holiday home also features a barbecue. This holiday home has a tea and coffee maker, a dining area, a TV and outdoor furniture. The unit has 1 bed.



Réservez en seulement 2 mins avec notre partenaire Booking.com
Reservez maintenant, au meilleur prix !



Informations générales et conditions
Adresse
22190 Plérin
Arrivée 16h00 - 20h00
Départ 00h01 - 10h00
Nombre de chambres 1
Informations importantes Les enterrements de vie de célibataire et autres fêtes de ce type sont interdits dans cet établissement. Veuillez noter que vous devrez régler le montant total de la réservation avant votre arrivée. NOVASOL vous enverra une confirmation précisant les modalités de paiement. Une fois celui-ci effectué, vous recevrez un e-mail contenant des informations sur l\'établissement, dont son adresse et le lieu de remise des clés.


Equipements
- Chauffage - Connexion internet Wi-Fi
- Connexion internet Wi-Fi gratuite - Connexion internet disponible
- Détecteurs de fumée - En bord de plage
- Installations pour barbecue - Jardin
- Mobilier extérieur - Parking
- Parking gratuit - Parking privé
- Parking sur place - Plage
- Pêche - Réservé aux adultes
- Wi-Fi disponible partout - Établissement entièrement non-fumeurs


Photos des chambres


Autres photos de l'hébergement


Carte Plerin
Liste des hôtels et des autres hébergements des communes proches

Voici la liste des communes proches de Maisons de vacances Lovely Home In Plerin With Wifi. En suivant ces liens, vous trouverez les informations, la carte, les prévisions météo et la liste des hôtels les plus proches de chaque commune.




Lovely Home In Plerin With Wifi : réservez avec Booking.com !

En choississant de réserver en ligne avec notre partenaire booking.com nous vous garantissons :
  • Une réservation sécurisée. Pour chaque réservation effectuée sur notre site, vos coordonnées sont protégées par une connexion sécurisée.
  • La protection de vos données personnelles. Vos données personnelles seront utilisées uniquement pour garantir votre réservation.
  • Pas de frais de réservation. Vous réglez votre séjour uniquement auprès de l'hôtel. Booking.com ne débitera pas votre carte de crédit.
  • La garantie du meilleur tarif. Vous avez trouvé la même chambre sur Internet à un tarif inférieur ? Booking.com alignera le prix.


J'aime
Lovely Home In Plérin With Wifi !



Rechercher un autre hôtel

Réservez maintenant, au meilleur prix !

Destination :


Date d'arrivée
      calendar
Date de départ
      calendar












Voir les hotels d'autres villes et villages de france


Rechercher les hotels d'une autre commune, code postal, département, région, ...




Vous aimez "Lovely Home In Plérin With Wifi" ? Faites un lien vers la page: "Lovely Home In Plérin With Wifi", à l'aide du code ci-dessous :







Rejoignez l'actualité Carte de France sur Facebook :