Photo Appartement Les Saisies 5 pers, 35m², équipements complets - FR-1-293-329


  

Appartement Les Saisies 5 pers, 35m², équipements complets - FR-1-293-329

L’hébergement Appartement Les Saisies 5 pers, 35m², équipements complets - FR-1-293-329 se trouve à Hauteluce, à respectivement 35 km et 37 km de ces lieux d’intérêt : Halle Olympique d'Albertville et Le Valleen Gondola. Vous pourrez pratiquer le ski dans les environs.

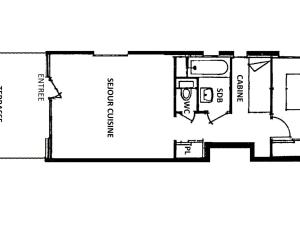
Cet appartement se compose de 1 chambre séparée, d'une cuisine entièrement équipée avec un réfrigérateur et un lave-vaisselle, ainsi que de 1 salle de bains. Une télévision est disponible.

L’établissement dispose d'un local à skis.

L'aéroport le plus proche (Aéroport de Chambéry - Savoie) est à 93 km.


À quelle période souhaitez-vous séjourner dans cet établissement ?
Du : 
Au : 

Chambres
Appartement (5 Adultes) 
Featuring a private entrance, this apartment also comprises 1 separate bedroom, 1 bathroom with a hairdryer, a kitchen and a dining area. Guests can make meals in the kitchen that is equipped with a refrigerator, a dishwasher, kitchenware and an oven. This apartment features a coffee machine, heating and a TV. The unit offers 2 beds.



Réservez en seulement 2 mins avec notre partenaire Booking.com
Reservez maintenant, au meilleur prix !



Informations générales et conditions
Adresse
100 Chemin de la ravire 73620 Hauteluce
Arrivée 15h00 - 18h00
Départ 09h00 - 09h30
Nombre de chambres 1
Informations importantes Veuillez informer l'établissement Appartement Les Saisies 5 pers, 35m², équipements complets - FR-1-293-329 à l'avance de l'heure à laquelle vous prévoyez d'arriver. Vous pouvez indiquer cette information dans la rubrique « Demandes spéciales » lors de la réservation ou contacter directement l'établissement. Ses coordonnées figurent sur votre confirmation de réservation. Vous devrez présenter une pièce d'identité avec photo et une carte de crédit lors de l'enregistrement. Veuillez noter que toutes les demandes spéciales seront satisfaites sous réserve de disponibilité et pourront entraîner des frais supplémentaires. Les enterrements de vie de célibataire et autres fêtes de ce type sont interdits dans cet établissement. Un dépôt de garantie d'un montant de EUR 400 est demandé à l'arrivée. Il devra être payé par carte de crédit. Le remboursement devrait être effectué dans les 14 jours qui suivent votre départ. Le dépôt de garantie vous sera entièrement remboursé sur votre carte de crédit, si aucun dommage n'a été constaté par l'établissement. Handover of the keys will take place at the agency in charge of the accommodation, which is located at a different address than the rental property. This address will be communicated to you by the agency after the reservation has been paid in full, 14 days prior to your arrival at the latest. Bed linen and towels are not available at the property, please make sure you bring your own.


Equipements
- Facture fournie sur demande - Local à skis
- Paiement sans espèces disponible - Respect des règles de distanciation physique
- Ski - Établissement entièrement non-fumeurs


Photos des chambres




Carte Hauteluce
Liste des hôtels et des autres hébergements des communes proches

Voici la liste des communes proches de Appartements Appartement Les Saisies 5 pers, 35m², equipements complets - FR-1-293-329. En suivant ces liens, vous trouverez les informations, la carte, les prévisions météo et la liste des hôtels les plus proches de chaque commune.




Appartement Les Saisies 5 pers, 35m², equipements complets - FR-1-293-329 : réservez avec Booking.com !

En choississant de réserver en ligne avec notre partenaire booking.com nous vous garantissons :
  • Une réservation sécurisée. Pour chaque réservation effectuée sur notre site, vos coordonnées sont protégées par une connexion sécurisée.
  • La protection de vos données personnelles. Vos données personnelles seront utilisées uniquement pour garantir votre réservation.
  • Pas de frais de réservation. Vous réglez votre séjour uniquement auprès de l'hôtel. Booking.com ne débitera pas votre carte de crédit.
  • La garantie du meilleur tarif. Vous avez trouvé la même chambre sur Internet à un tarif inférieur ? Booking.com alignera le prix.


J'aime
Appartement Les Saisies 5 pers, 35m², équipements complets - FR-1-293-329 !



Rechercher un autre hôtel

Réservez maintenant, au meilleur prix !

Destination :


Date d'arrivée
      calendar
Date de départ
      calendar












Voir les hotels d'autres villes et villages de france


Rechercher les hotels d'une autre commune, code postal, département, région, ...




Vous aimez "Appartement Les Saisies 5 pers, 35m², équipements complets - FR-1-293-329" ? Faites un lien vers la page: "Appartement Les Saisies 5 pers, 35m², équipements complets - FR-1-293-329", à l'aide du code ci-dessous :







Rejoignez l'actualité Carte de France sur Facebook :